Poszukuję dekarza do wykonania dachu pow. Wołomiński
Wołomin Pokaż na mapie ›
Dodane: Środa, 26 Listopad, 2025 14:09
Szczegóły ogłoszenia
- Kategoria: Dam zlecenie / Budowlane
Opis oferty
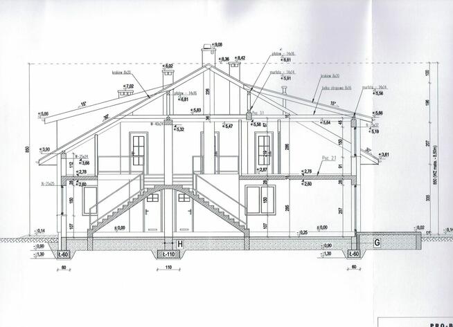
Dzień dobry,poszukuję dekarzy do wykonania dachu wg. projektu, który widnieje w galerii. Budynki są dwa takie same przyłączone do siebie, czyli dwa dachy jak w projekcie.
Lokalizacja budowy: 05-200 Leśniakowizna k. Wołomina
Kontakt telefoniczny lub e-mail: @
Damian
Konto prywatne
Na Lento.pl od 22 sie 2025
Strona użytkownika
- Wypromuj ogłoszenie
- Zgłoś naruszenie
- Drukuj ulotkę
- Udostępnij ogłoszenie
- Dodaj na Facebook










